截止阀(球形阀)是一种塞形阀瓣,其密封面为平面或海锥形,阀瓣沿阀座中心线线性移动。阀杆的运动形式,以及升降旋转杆式,可用于控制空气、水、蒸汽、各种腐蚀性介质、泥浆、油、液态金属和放射性介质等各种流体的流动。因此,这种类型的切断截止阀非常适合切断或调节和节流。由于阀杆的开启或关闭行程相对较短,阀门具有非常可靠的切断功能,而且由于阀座开度的变化与阀瓣的行程成正比,非常适合调节流量。

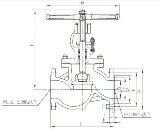
J41H铸钢法兰截止阀产品外形及结构尺寸及重量 1.6MPa
DN | L | D | D1 | D2 | b | z×ød | H | D0 | 重量/KG |
10 | 130 | 90 | 60 | 40 | 14 | 4×ø14 | 198 | 120 | 5 |
15 | 130 | 95 | 65 | 45 | 14 | 4×ø14 | 200 | 120 | 5.5 |
20 | 150 | 105 | 75 | 55 | 14 | 4×ø14 | 243 | 140 | 7.3 |
25 | 160 | 115 | 85 | 65 | 14 | 4×ø14 | 253 | 160 | 8 |
32 | 180 | 135 | 100 | 78 | 15 | 4×ø18 | 280 | 160 | 12 |
40 | 200 | 145 | 110 | 85 | 16 | 4×ø18 | 312 | 200 | 16 |
50 | 230 | 160 | 125 | 100 | 16 | 4×ø18 | 321 | 200 | 16 |
65 | 290 | 180 | 145 | 120 | 18 | 4×ø18 | 325 | 240 | 22 |
80 | 310 | 195 | 160 | 135 | 20 | 4×ø18 | 355 | 240 | 31 |
100 | 350 | 215 | 180 | 155 | 20 | 4×ø18 | 415 | 280 | 45 |
125 | 400 | 245 | 210 | 185 | 22 | 4×ø18 | 460 | 320 | 80 |
150 | 480 | 280 | 240 | 210 | 24 | 8×ø23 | 510 | 360 | 97 |
200 | 600 | 335 | 295 | 265 | 26 | 12×ø23 | 590 | 360 | 169 |
J41H铸钢法兰截止阀产品外形及结构尺寸及重量 2.5MPa
DN | L | D | D1 | D2 | b | z×ød | H | D0 | 重量/KG |
10 | 130 | 90 | 60 | 40 | 16 | 4×ø14 | 198 | 120 | 4.9 |
15 | 130 | 95 | 65 | 45 | 16 | 4×ø14 | 233 | 120 | 5.5 |
20 | 150 | 105 | 75 | 55 | 16 | 4×ø14 | 275 | 140 | 7 |
25 | 160 | 115 | 85 | 65 | 16 | 4×ø14 | 285 | 160 | 7.5 |
32 | 180 | 135 | 100 | 78 | 18 | 4×ø18 | 302 | 180 | 8.5 |
40 | 200 | 145 | 110 | 85 | 18 | 4×ø18 | 355 | 200 | 12.5 |
50 | 230 | 160 | 125 | 100 | 20 | 4×ø18 | 362 | 240 | 16 |
65 | 290 | 180 | 145 | 120 | 22 | 8×ø18 | 325 | 280 | 25 |
80 | 310 | 195 | 160 | 135 | 22 | 8×ø18 | 369 | 280 | 30 |
100 | 350 | 230 | 190 | 165 | 24 | 8×ø23 | 370 | 300 | 35 |
125 | 400 | 270 | 220 | 188 | 28 | 8×ø18 | 558 | 400 | 89 |
150 | 480 | 300 | 250 | 218 | 30 | 8×ø23 | 611 | 400 | 98 |
200 | 600 | 360 | 310 | 278 | 34 | 12×ø25 | 721 | 400 | 170 |
J41H铸钢法兰截止阀产品外形及结构尺寸及重量 4.0MPa
DN | L | D | D1 | D2 | b | z×ød | H | D0 | 重量/KG |
10 | 130 | 90 | 60 | 40 | 16 | 4×ø14 | 198 | 120 | 4.5 |
15 | 130 | 95 | 65 | 45 | 16 | 4×ø14 | 233 | 120 | 5 |
20 | 150 | 105 | 75 | 55 | 16 | 4×ø14 | 275 | 140 | 7 |
25 | 160 | 115 | 85 | 65 | 16 | 4×ø14 | 285 | 160 | 9 |
32 | 180 | 135 | 100 | 78 | 18 | 4×ø18 | 302 | 160 | 12 |
40 | 200 | 145 | 110 | 85 | 18 | 4×ø18 | 355 | 200 | 17 |
50 | 230 | 160 | 125 | 100 | 20 | 4×ø18 | 373 | 240 | 24 |
65 | 290 | 180 | 145 | 120 | 22 | 8×ø18 | 408 | 280 | 33 |
80 | 310 | 195 | 160 | 135 | 22 | 8×ø18 | 436 | 320 | 44 |
100 | 350 | 230 | 190 | 160 | 24 | 8×ø23 | 480 | 360 | 60 |
125 | 400 | 270 | 220 | 188 | 28 | 8×ø25 | 558 | 400 | 89 |
150 | 480 | 300 | 250 | 218 | 30 | 8×ø25 | 611 | 400 | 130 |













