丝瓜视频污片软件下载,丝瓜视频污污污色版下载,丝瓜视频污在线免费看,丝瓜视频色版APP免费下载

天津丝瓜视频污片软件下载阀门有限公司
139 2086 1487
tjoutshine@tjoutshinevalsve.com

公司产品

双口排气阀

双口排气阀

适用于介质为水的管道上,作为排除管道内气体的设备,以提高输水设备的效率和保护管道不致变形、破裂,是管道必备之设备。性能特点1.能够排除管道中的气体,减少阻力,节

详情

  双口排气阀适用于以水为介质的管道,作为去除管道内气体的装置,以提高输水设备的效率,保护管道不变形、不破裂,是管道必不可少的装置。


  运行特性


  1.它可以排出管道中的气体,减少阻力,节约能源。


  2.当管道处于负压状态时,本产品可自动吸入空气,防止管道破裂。


  3.浮球采用不锈钢制造,使用寿命长,安全可靠。

本阀适用于温度不超过100℃的水、热水管道上使管道内的空气全部排出。 ⑴注:D>350mm管路请选单口排气阀(QB1-10)。
⑵安装双口排气阀,底下一定要安装一只保护阀门、球阀(Q41F-16),以免检验停水。
⑶如需方求方本排气阀法兰大小尺寸如变动,请在合同上注明法兰连接尺寸。
本排气阀适用水、热水、高温度100℃的管道上,使管道内的气体全部排出。

 

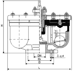
连接尺寸

公称通径

                                     

D

                    

                        

D1

                       

L

                        

H

                      

do

                      

Z-Φ

                           

50

160

125

345

315

75

4-14

80

195

160

345

315

75

4-14

100

215

180

345

315

75

4-18

150

280

240

475

380

90

8-23

200

335

245

475

420

90

8-23

 

QB2-10型双口排气阀每小时排气量表

规格

50

75

100

150

200

立方米/小时

4-173

85-352

14-597

22-904

27-1145

 

 

[[TD-Recommended Products]]

    网站地图