产品概述:
T型过滤器外形像字母“T”,丝瓜视频污片软件下载称之为T型过滤器。t型过滤器是一种从液体中去除少量固体颗粒的小型设备,可以保护设备的正常运行,流体进入具有一定规格过滤器的过滤桶后,杂质会被堵塞,干净的过滤器从过滤器出口排出,需要清洗时只需取出可拆卸过滤器,处理后重新装载即可,因此使用维护非常方便。大卫亚设(David Assell),
主要技术参数:
壳材料:碳钢、不锈钢(SUS304、SUS304L、SUS316、SUS316L)、内衬氟、塑料(PP、PVC等)。
过滤器框,
服务范围:
1、石化生产中弱腐蚀性物质(如水、氨、油、碳氢化合物等)。
2.化工生产中的腐蚀性材料,如烧碱、纯碱、浓度、稀硫酸、碳酸、醋酸、酯酸等。
3.制冷的低温材料(如液态甲烷、液氨、液氧、各种制冷剂)。
4.轻工业食品、制药生产中有卫生要求的材料(如啤酒、饮料、乳制品、谷物纸浆药品等)。连接类型:法兰连接、螺纹连接、焊接。过滤材料:不锈钢。
密封环材料:金属缠绕丁青橡胶聚四氟乙烯。
工作温度:碳钢:-40 ~ 380;不锈钢:-80~450
|
|
|
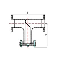
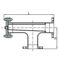
规格尺寸:
DN | L | H | H1 | |
50 | 2" | 278 | 166 | 306 |
65 | 21/2 | 314 | 187 | 348 |
80 | 3" | 342 | 205 | 384 |
100 | 4" | 418 | 246 | 473 |
125 | 5" | 460 | 270 | 529 |
150 | 6" | 500 | 292 | 581 |
200 | 8" | 588 | 340 | 694 |
250 | 10" | 690 | 398 | 821 |
300 | 12" | 792 | 452 | 949 |
350 | 14" | 852 | 485 | 1023 |
400 | 16" | 970 | 547 | 1166 |
500 | 20" | 1148 | 642 | 1372 |
















