产品介绍:
法兰闸阀GV200LK541WRL16,材料: 316L,用金属钢材料铸造的所有闸阀统称为铸钢闸阀。对应铸钢闸阀的灰铸铁闸阀、锻钢闸阀、可锻铸铁闸阀。铸钢闸阀的开闭物是闸门,闸门的运动方向垂直于流体方向,闸阀只能进行整体和整体关闭,不能进行调节和节流。幻灯片上有两个密封面,最常用的模式闸阀的两个密封面是楔,楔角取决于阀门参数,一般为50,介质温度不高的情况下为2 52’。楔形闸阀的浇口可以做成一个整体,称为刚性浇口。可以制造出能产生微量变形的浇口,提高工艺性,弥补加工过程中密封面角度的偏差。这个浇口称为弹性浇口。该阀具有开关轻、密封可靠、弹性记忆好、寿命长等明显优点。可广泛用作自来水、污水、建筑、石油、化工、食品、医药、轻纺、电力、船舶、冶金、能源系统等体管的调节和封闭装置。
产品特性:
流体阻力小,密封面受介质的高铜溶胶和侵蚀小。开闭比较容易。媒体流动不受限制,不妨碍流动,不降低压力。结构简单,结构长度短,制造工艺性好,耐高温高压可选材料多,适用范围广。
生产

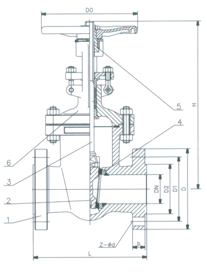
产品参数:
主要性能参数:
| |
适用温度 | ≤425℃ |
适用介质 | 水、油品、蒸汽、酸性介质等 |
主要零部件
| 阀体、阀盖、支架、阀瓣、阀杆、阀座 |
主要材料 | 碳钢、不锈钢 |
公称压力PN(Mpa) | 公称通径DN(mm) | 尺寸 Dimension(mm) | 重量(kg) weight | |||||||
L | D | D1 | D2 | b-f | n-Φd | H | Do | |||
1.6 | 15 | 130 | 95 | 65 | 45 | 16-2 | 4-Φ14 | 170 | 120 | 5 |
20 | 150 | 105 | 75 | 55 | 16-2 | 4-Φ14 | 190 | 140 | 6.5 | |
25 | 160 | 115 | 85 | 65 | 16-2 | 4-Φ14 | 205 | 160 | 9 | |
32 | 180 | 135 | 100 | 78 | 18-2 | 4-Φ18 | 270 | 180 | 12 | |
40 | 200 | 145 | 110 | 85 | 18-3 | 4-Φ18 | 310 | 200 | 26.5 | |
50 | 250 | 160 | 125 | 100 | 18-3 | 4-Φ18 | 358 | 240 | 29 | |
65 | 265 | 180 | 145 | 120 | 18-3 | 4-Φ18 | 373 | 240 | 33 | |
80 | 280 | 195 | 160 | 135 | 20-3 | 8-Φ18 | 435 | 280 | 45 | |
100 | 300 | 215 | 180 | 155 | 20-3 | 8-Φ18 | 500 | 300 | 63 | |
125 | 325 | 245 | 210 | 185 | 22-3 | 8-Φ18 | 614 | 320 | 108 | |
150 | 350 | 280 | 240 | 210 | 24-3 | 8-Φ23 | 674 | 360 | 134 | |
200 | 400 | 335 | 295 | 265 | 26-3 | 12-Φ23 | 818 | 400 | 192 | |
250 | 450 | 405 | 355 | 320 | 30-3 | 12-Φ25 | 969 | 450 | 273 | |
300 | 500 | 460 | 410 | 375 | 30-4 | 12-Φ25 | 1145 | 560 | 379 | |
350 | 550 | 520 | 470 | 435 | 34-4 | 16-Φ25 | 1280 | 640 | 590 | |
400 | 600 | 580 | 525 | 485 | 36-4 | 16-Φ30 | 1452 | 640 | 850 | |
450 | 650 | 640 | 585 | 545 | 40-4 | 20-Φ30 | 1541 | 720 | 907 | |
500 | 700 | 705 | 650 | 608 | 44-4 | 20-Φ34 | 1676 | 720 | 958 | |
600 | 800 | 840 | 770 | 718 | 48-5 | 20-Φ41 | 1874 | 800 | 1112 | |
2.5 | 15 | 130 | 95 | 65 | 45 | 16-2 | 4-Φ14 | 170 | 5.5 | |
20 | 150 | 105 | 75 | 55 | 16-2 | 4-Φ14 | 190 | 7 | ||
25 | 160 | 115 | 85 | 65 | 16-2 | 4-Φ14 | 205 | 11 | ||
32 | 180 | 135 | 100 | 78 | 18-2 | 4-Φ18 | 270 | 14 | ||
40 | 200 | 145 | 110 | 85 | 18-3 | 4-Φ18 | 310 | 30 | ||
50 | 250 | 160 | 125 | 100 | 20-3 | 4-Φ18 | 358 | 34 | ||
65 | 265 | 180 | 145 | 120 | 22-3 | 8-Φ18 | 373 | 36 | ||
80 | 280 | 195 | 160 | 135 | 22-3 | 8-Φ18 | 435 | 50 | ||
100 | 300 | 230 | 190 | 160 | 24-3 | 8-Φ23 | 500 | 69 | ||
125 | 325 | 270 | 220 | 188 | 28-3 | 8-Φ25 | 614 | 116 | ||
150 | 350 | 300 | 250 | 218 | 30-3 | 8-Φ25 | 674 | 141 | ||
200 | 400 | 360 | 310 | 278 | 34-3 | 12-Φ25 | 818 | 192 | ||
250 | 450 | 425 | 370 | 332 | 36-3 | 12-Φ30 | 969 | 207 | ||
300 | 500 | 485 | 430 | 390 | 40-4 | 16-Φ30 | 1145 | 400 | ||
350 | 550 | 550 | 490 | 448 | 44-4 | 16-Φ34 | 1280 | 631 | ||
400 | 600 | 610 | 550 | 505 | 48-4 | 16-Φ34 | 1452 | 900 | ||
450 | 650 | 660 | 600 | 555 | 50-4 | 20-Φ34 | 1541 | 1013 | ||
500 | 700 | 730 | 660 | 610 | 52-4 | 20-Φ41 | 1676 | 1166 | ||
600 | 800 | 840 | 770 | 718 | 56-5 | 20-Φ41 | 1874 | 1258 | ||













